Project Overview
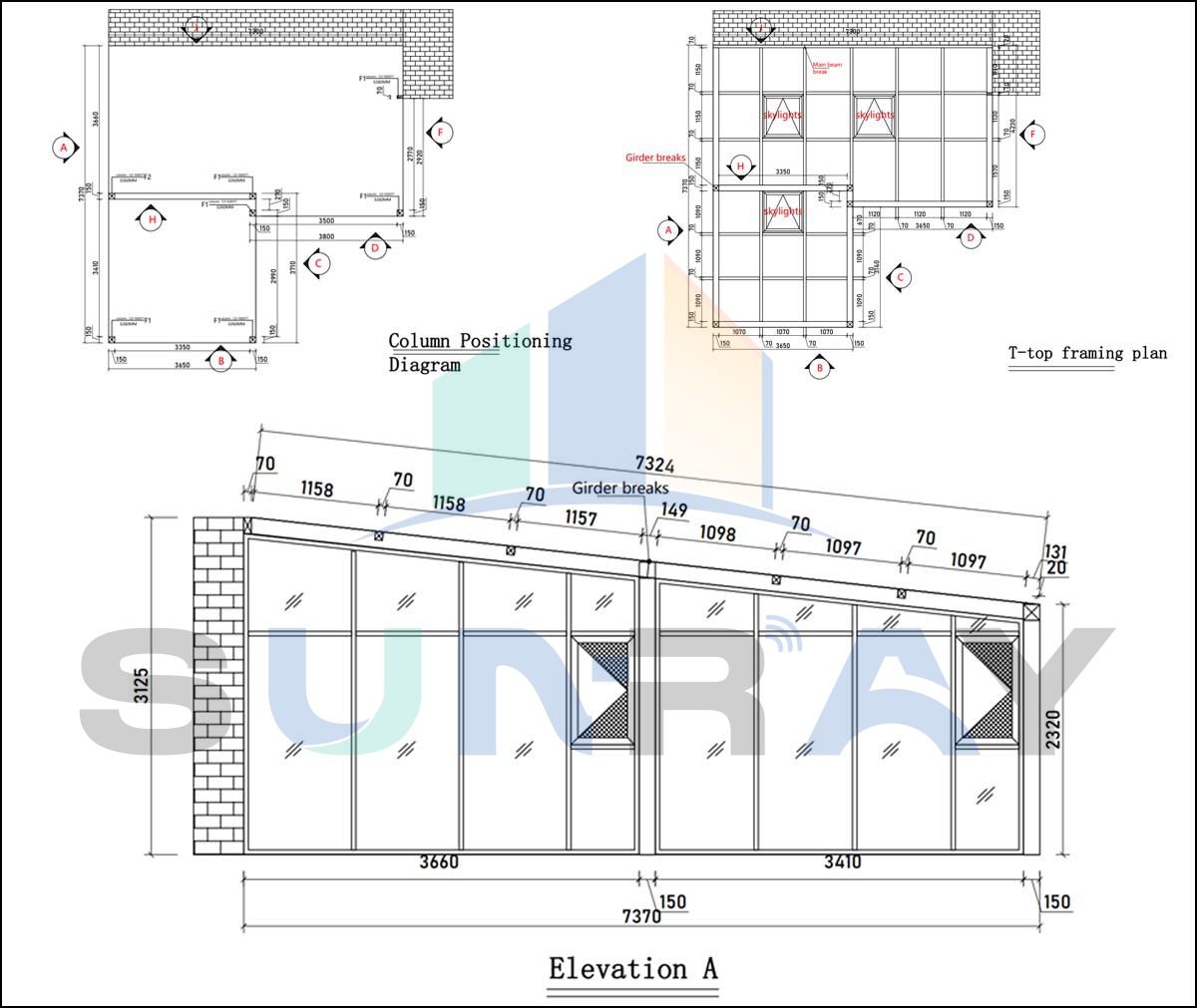
Located in Canada, this premium skylight sunroom project is a masterpiece of functional aesthetics tailored for extreme local climates. Covering a space of 7.3m (L) × 7.3m (W) × 3.1m (H), the sunroom adopts an L-shaped layout to perfectly match the client’s on-site conditions. It is installed by our professional local Canadian team with on-site door-to-door service, ensuring seamless integration with the building structure and optimal adaptation to the regional environmental conditions. Designed with a T-top framing structure, the project features exquisite dimensional coordination and stable load-bearing capacity, becoming a high-end residential upgrade benchmark in the local area.
Client Needs
-
Create a high-end skylight sunroom (capable of functioning as a four season room) with both visual appeal and long-term durability, suitable for Canada’s variable climate conditions.
-
Achieve excellent thermal insulation and weather resistance to cope with temperature fluctuations and harsh outdoor environments, a key requirement for a functional four season room.
-
Ensure superior structural safety and stability, with integrated safety protection features—standards our sunroom builders strictly adhere to.
-
Require convenient daily maintenance and long service life, reducing subsequent use costs, a priority for our sunroom contractors when delivering sun rooms.
-
Expect professional on-site installation and reliable after-sales support from a local team of sunroom builders and sunroom contractors.
Design & Technical Proposal
- Structural Design:
Adopts a high-strength T-top framing plan combined with a customized L-shaped layout, perfectly adapting to the client’s on-site spatial constraints— a design expertise our sunroom contractors and sunroom builders bring to every sunroom project. The main frame is constructed with high-grade alloy materials, ensuring exceptional stability and load-bearing capacity to withstand strong winds and heavy snow, critical for Canada’s climate whether building a standard sunroom, sun rooms, or a four season room.
- Material Selection:
Features high-transparency, impact-resistant safety glass with a multi-layer structural design, chosen by our sunroom builders to enhance the longevity and comfort of sun rooms. The sealing system uses high-quality weatherstripping to achieve excellent waterproof, dustproof and soundproof effects, essential for a four season room that must perform year-round.
- Thermal Insulation Performance:
Optimized thermal insulation structure design effectively isolates indoor and outdoor temperature exchange, maintaining a comfortable indoor temperature even in extreme cold or hot weather—making this sunroom a true four season room—reducing energy consumption for heating and cooling, a key advantage our sunroom contractors highlight for Canadian clients.
- Installation Service:
Our local Canadian installation team (comprised of skilled sunroom builders and overseen by our sunroom contractors) provides one-stop door-to-door service, from on-site measurement and customization to precise installation and post-commissioning, ensuring professional operation and perfect project delivery for every sunroom and sun rooms we build.
Project Results
This premium skylight sunroom—expertly built by our sunroom contractors and sunroom builders—has successfully transformed the client’s living space into a bright, comfortable and safe private haven, functioning beautifully as a four season room. The L-shaped layout maximizes the utilization of on-site space, while the T-top design enhances architectural beauty and maximizes natural light intake, creating a spacious and airy indoor atmosphere that sets our sun rooms apart. With excellent weather resistance and thermal insulation, the sunroom maintains stable indoor comfort in all seasons (a hallmark of a quality four season room), reducing energy costs by 25% compared to traditional sunrooms. The high-strength structure and safety protection design—core priorities for our sunroom builders—fully meet the local building safety standards, while the low-maintenance materials and structure (a key commitment of our sunroom contractors) reduce daily upkeep frequency by 40% for this and all our sun rooms.
Application Scenarios
Ideal for high-end residential properties, villa courtyards, residential terraces and other scenarios in Canada, our sunrooms and sun rooms—built by trusted sunroom contractors and sunroom builders—offer versatile functionality. They can be used as a leisure lounge, reading room, flower greenhouse or family gathering space, providing a versatile living extension that combines functionality and luxury, whether designed as a standard sunroom or a four season room. The standardized design and mature installation process (refined by our sunroom contractors and sunroom builders) support customization according to different residential styles and user needs, suitable for promotion in various high-end residential renovation projects across Canada for sunrooms and sun rooms alike.


