Project Overview
This project is set in the pool area of a high-end villa courtyard in the US, featuring a custom retractable sunroom (serving as a pool enclosure) sized 6.2m(L)×3.3m(W)×1.3m(H). While our core expertise also covers mobile sunroom designs and sunrooms for mobile homes, this custom retractable sunroom adopts a high-grade aluminum alloy frame and precision track sliding system, fitting the local diverse climates, enabling free open/closed switching for the pool area, and perfectly matching the villa’s architectural style. Professional structural design and rigorous testing ensure superior stability and safety, setting a new benchmark for high-end villa pool upgrades—and also offering insights for mobile home with sunroom designs—in the US.
Client Needs
-
Custom weather-resistant retractable sunroom (pool enclosure) for the US diverse climates, withstanding extreme temperatures, strong sunlight and sudden rainfall; this standard also applies to our sunroom mobile home solutions.
-
The client also required a stable structure & wind/waterproof sliding system, complying with US ICC building safety standards—critical for both high-end villa enclosures and sunrooms for mobile homes.
-
Additional needs included excellent thermal insulation and UV protection to reduce pool water heat loss and UV damage
- Minimalist high-end design integrated with American villa style and courtyard landscape
(and adaptable to mobile home aesthetics for sunroom mobile home projects)
- Durable quality, low maintenance and one-person easy operation of the sliding structure
——key features we prioritize in all mobile sunroom and retractable sunroom designs.
Design & Technical Proposal
Structural Design
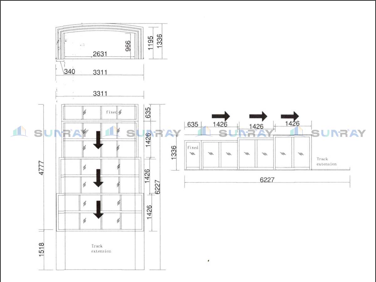
Aviation-grade aluminum alloy frame with optimized load-bearing structure + high-precision stainless steel track system—proven effective in both our retractable sunroom and mobile sunroom projects. Professionally stress-tested for wind/rain resistance and thermal expansion, this design is also scalable for sunrooms for mobile homes and mobile home with sunroom configurations. Modular track design for smooth opening/closing, fixed nodes for enhanced stability, adapted to pool drainage layout (and adjustable for mobile home spatial constraints in sunroom mobile home installations).
Material Selection
High-transparency, impact-resistant PC panels with nano anti-fouling coating—used consistently across our retractable sunroom, mobile sunroom, and sunrooms for mobile home lines. Equipped with EPDM rubber weatherstripping and integrated waterproof drainage trough for airtight sealing, preventing rain backflow and dust intrusion—essential for all outdoor enclosures, including mobile home with sunroom setups.
Thermal Insulation & UV Protection
Multi-layer thermal insulation technology in frame and panels, reducing pool water temperature fluctuation by 35%. This same technology is applied to our mobile sunroom and sunroom mobile home products to enhance energy efficiency. UV-resistant PC panels filter 95% of harmful UV rays while maintaining 90% light transmittance—ideal for both pool enclosures and sunrooms for mobile homes, where comfort and protection are paramount.
Quality Assurance
Rigorous structural, track durability and waterproof testing, complying with US ICC building standards and pool accessory specifications—standards we adhere to for all retractable sunroom, mobile sunroom, and sunrooms for mobile home projects. Fluorocarbon-sprayed aluminum alloy frame for excellent corrosion/oxidation resistance, suitable for pool humid environment, US north-south climate differences, and the varying conditions mobile home with sunroom setups may encounter.
Project Results
This custom retractable sunroom upgrades the pool area into a year-round multifunctional space with free open/closed switching—mirroring the versatility we offer in our mobile sunroom and sunroom mobile home solutions. Stable structure and weather-resistant, thermal insulation materials keep water temperature steady, cutting pool water maintenance costs by 50% vs traditional open pools. Its minimalist high-end design complements the villa style, boosts property value, and the low-maintenance materials reduce daily upkeep costs by 45%—benefits that also translate to sunrooms for mobile homes and mobile home with sunroom installations. The precision track system is easy to operate by one person for convenient pool space management, a feature we prioritize in all our mobile sunroom and retractable sunroom designs.
Application Scenarios
Ideal for high-end villa, mansion and luxury residential pool areas across the US, adapting to climatic features from cold northern states to hot southern coastal areas. Beyond pool enclosures, our mobile sunroom, sunroom mobile home, and mobile home with sunroom solutions are also suitable for mobile homeowners seeking to expand their living space with a retractable sunroom. All our products solve core issues of heat preservation, UV protection, rain and dust proofing. Customizable track and frame design meets high-end homeowners’ demands for functional and luxury pool space, as well as mobile homeowners’ needs for sunrooms for mobile homes, creating a unique outdoor leisure experience combining nature and comfort.

